Estimados amigos del Museo de Historia, Antropología y Arte:
Ya se acerca el 2 de diciembre, o Giving Tuesday, el día para dar generosamente a las entidades que uno quiere, ¡incluyendo el Museo! Gracias a aportaciones recibidas en años anteriores, hemos podido gestionar todo lo necesario para la relocalización del Centro de Investigaciones Arqueológicas a un espacio adecuado en el edificio César Cordero Dávila (conocido como el Castillito), con el fin convertirlo en la nueva sede del Centro y brindar mejor acceso a las colecciones que forman parte del patrimonio arqueológico de Puerto Rico.
En este Giving Tuesday 2025, considera donar al Museo UPRRP. Tu donativo nos acercará a completar los fondos necesarios para rehabilitar el ala oeste del edificio del Museo. Por décadas, el ala oeste contenía la Sala de Arqueología Antillana, la Sala de Arte, el salón del Antiguo Egipto y una recepción, hasta que varios desastres naturales y otros retos provocaron su cierre. Ahora llegó el momento para retomar los trabajos de renovación del ala oeste y crear nuevos y mejores espacios de exposiciones para las colecciones de las culturas autóctonas de Puerto Rico, de arte y de historia, además de un salón de usos múltiples y un almacén. ¡Ayúdanos a hacer posible este sueño!
¡Juntos lo lograremos! ¡GRACIAS!
Estado previo a reconstrucción
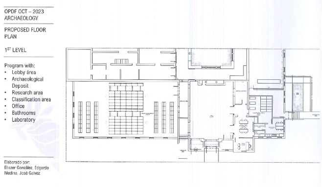
Proyecto propuesto
OTROS MÉTODOS PARA REALIZAR TU DONATIVO
Cheque o giro postal
Debe estar a nombre de ” UPR-RÍO PIEDRAS MHAA “. Puede enviarlo por correo postal a la siguiente dirección:
Museo de Historia, Antropología y Arte
Universidad de Puerto Rico, Recinto de Río Piedras
6 Avenida Universidad, Ste. 601
San Juan, Puerto Rico 00925-2526
INFORMACIÓN DE CONTACTO
Flavia Marichal Lugo, Directora y Curadora de Arte
787-763-3939
flavia.marichal@upr.edu
Dirección postal:
Museo de Historia, Antropología y Arte
Universidad de Puerto Rico, Recinto de Río Piedras
6 Avenida Universidad, Ste. 601
San Juan, Puerto Rico 00925-2526
Dirección Física:
Universidad de Puerto Rico, Recinto de Río Piedras
San Juan, Puerto Rico
Primer edificio a mano izquierda, entrando por el portón principal de vehículos de la Avenida Juan Ponce de León.

